Property Description
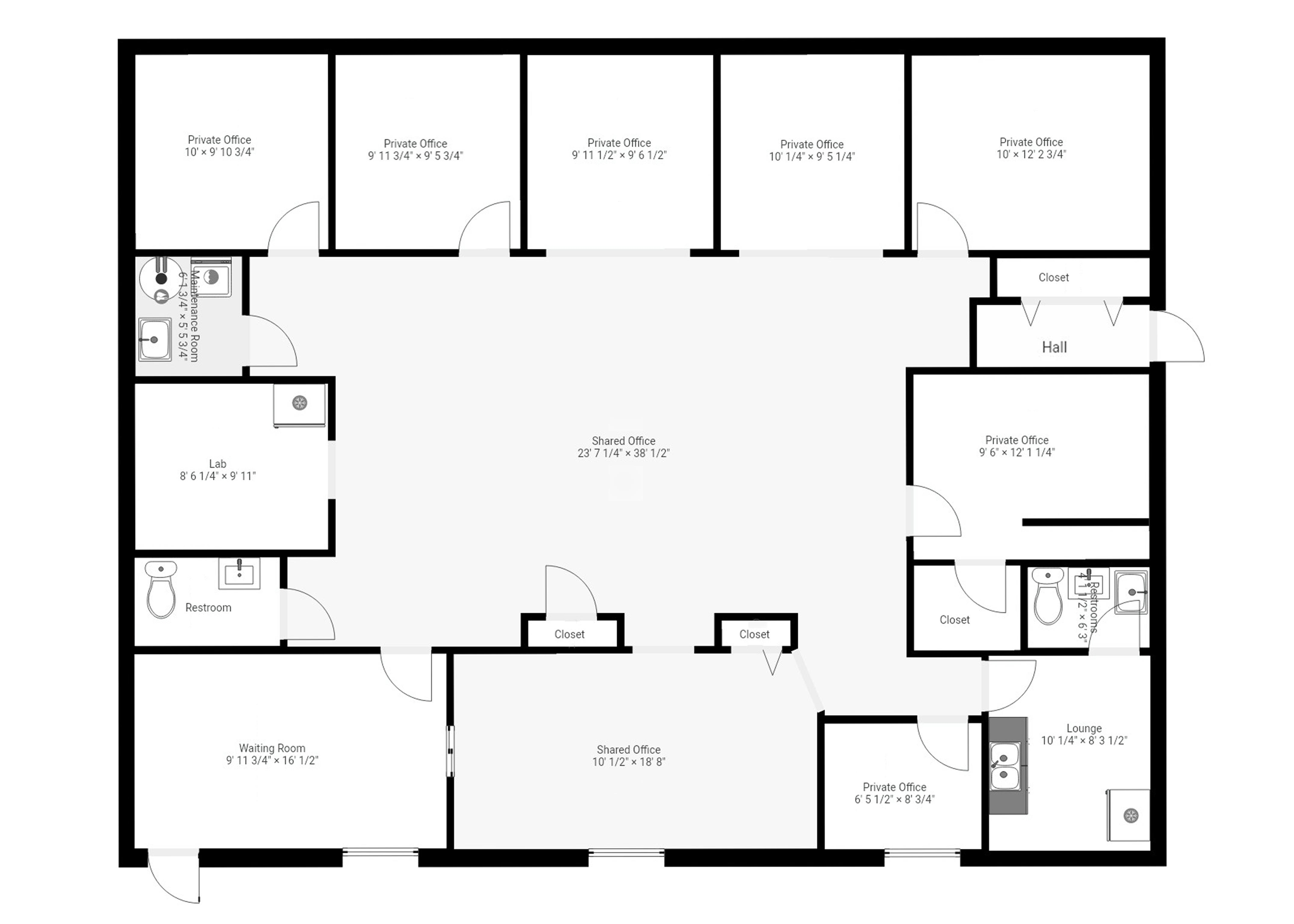
South Frederica business district. Currently being used as a medical practice, this space is for lease and can altered to match your business needs. 2285 square feet divided into private offices and exam rooms. See the floorplan attached with photos. Suite 1-B is also available in the Bridgewater Commerce center with Common area and security doors.
Address Map
- Country:
- US
- State:
- KY
- County:
- Daviess
- City:
- Owensboro
- Area:
- Owensboro
- Zipcode:
- 42303
- Street:
- Salem Drive
- Street Number:
- 750
- Postal Code:
- 42303
- Longitude:
- W88° 52' 42''
- Latitude:
- N37° 43' 34.9''
Additional Information
- Area/Subdivision:
- SOUTH
- HOA Amount:
- $0
Office
750 Salem Drive, Owensboro, Kentucky 42303
Visits : 377 in 472 days
$899,000
Listing ID #91402
Basic Details
- Property Type :
- Office
- Listing ID :
- 91402
- Price :
- $899,000
- Year Built :
- 1984
- Lot Size :
- .78 acres
- Status :
- Pending Sale